Главная
»
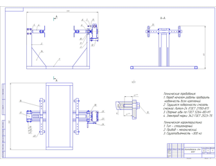
Кантователь для кпп
Кантователь для КПП