Унитаз Напольный с Боковым Подводом Воды купить...
Унитаз-комплект "Комфорт Эконом" боковой подвод...
Купить унитаз с нижним сливом в пол (выпуском к...
Установка унитаза с вертикальным выпуском: tvin...
Безободковый унитаз-компакт Agger пристенный с ...
Унитаз-компакт Santeri Ультра с косым выпуском ...
Унитаз с бачком напольный Sanita Формат комфорт...
#УНИТАЗЫ С ВЕРТИКАЛЬНЫМ ВЫПУСКОМ В процессе выб...
Унитаз-компакт DIWO Кострома 0422 с микролифтом...
Унитаз с боковым выпуском: разновидности, инстр...
Разновидности выпуска унитаза - cоветы по выбор...
Унитаз-компакт Lavelly Aqua безободковый с гори...
Конструкция компакт
Унитаз с косым выпуском, Gesso Премиум-2 — T-WAY
Напольный унитаз с бачком Cersanit Just с косым...
Высокий унитаз с вертикальным выпуском, Jika De...
Унитаз-компакт Суперкомпакт с косым выпуском — ...
Унитаз с бачком напольный SANITA LUXE Max с кос...
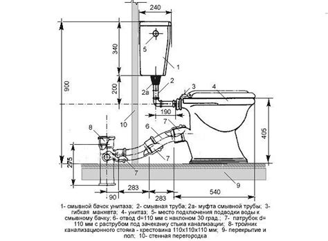
Как подключить унитаз к канализации и подсоедин...
Унитаз с вертикальным выпуском | Купить унитаз ...
Скрытые советы по выбору унитаза | Пикабу
Унитаз компакт ЮБИЛЕЙНЫЙ с бачком ЛЮКС, косой в...
Унитаз с бачком напольный ROSA Лира (белый) с к...
Боковые унитазы. Купить унитаз с боковым подвод...
Унитаз-компакт Santek Алькор с косым выпуском с...
Унитаз-компакт Sanita Идеал с косым выпуском с ...
Унитаз-компакт DIWO Анапа DA0005 белый, с нижни...
Унитаз с бачком напольный Cersanit Geo KO-GEO03...
Унитаз с бачком КЛАССИЧЕСКИЙ, косой выпуск, бок...