Теплообменники TEW, купить теплообменник от про...
Теплообменник водяной пластинчатый Серия ES - к...
Теплообменник водяной пластинчатый Серия E - ку...
Водяные канальные теплообменники 3-х рядные КВТ...
ТОВАРЫ - Теплообменник водяной серия MSG - HYDR...
Теплообменник водяной 2-х рядный TEW 02.60-35, ...
Теплообменник водяной TEW 160 - ГлавСервис Групп
Официальный сервисный центр Korf, Ned и Vertro....
Водяной теплообменник закрытого типа | Производ...
Теплообменник водяной: Водяной теплообменник дл...
Теплообменник водяной 3-х рядный TEW 03.60-30 (...
Теплообменники, купить теплообменник от произво...
Теплообменник (160 кВт) Bowman FG 100-5115-2S |...
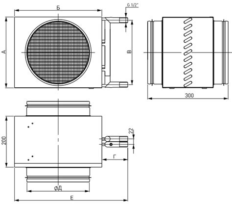
Теплообменник канальный водяной TEW 160 для кру...
Теплообменники для отопления дома своими руками...
Теплообменники - двухрядные, трехрядные теплооб...
ТОВАРЫ - Теплообменник водяной серия GLC
Теплообменник TEW канальный водяной
Канальные водяные теплообменники TEW для круглы...
Теплообменник водяной пластинчатый Серия FS - к...
Теплообменник разборный 160 кВт Browman купить ...
теплообменник водяной
Теплообменник водяной 3-х рядный TEWL 03.60-35 ...
Водяной теплообменник для круглых каналов TEW -...
Теплообменник водяной TEW 02.80-50 (2-х рядный)
Теплообменник TEW 160 Vilmann купить (для кругл...
Трехрядные канальные теплообменники - ВЕНТЗАП